Asansör Teknik Bilgiler

Anasayfa

Teknik Bilgi

Makine Dairesiz Dişlisiz

Hidrolik Otomatik

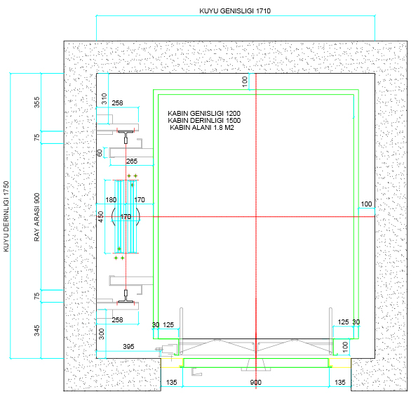
Otomatik Ağırlık Arka

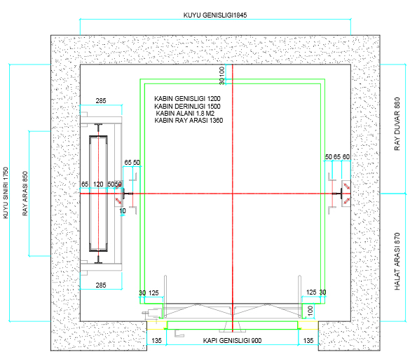
Otomatik Ağırlık Yanda

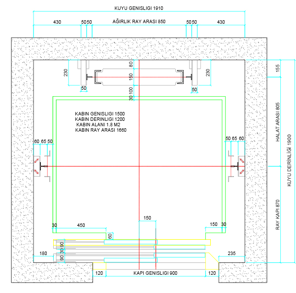
Yarı Otomatik Ağırlık Arka

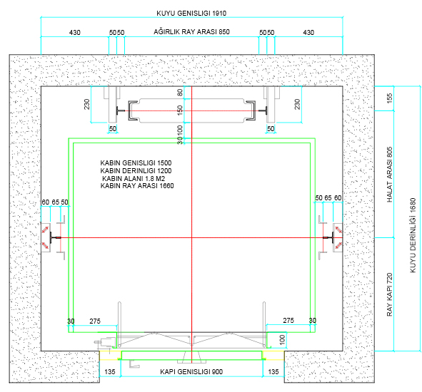
Yarı Otomatik Ağırlık Yanda

Yarı Otomatik Hidrolik

Referanslarımızdan Bazıları

Oskar Asansör Online Katalog

Firmamızın online PDF kataloğunu incelemek veya indirmek için lütfen linke tıklayınız.

Online Katalog

1981 yılından günümüze Asansör sektöründe öncü bir firma olan Oskar Asansör, "Önce İnsan" prensibi ile müşterilerine hizmet etmektedir.

oskar@oskarasansor.com

444 10 32

0212 586 05 08

Yeşiltepe Mahallesi, Şht. Er Murat Güven Cd. 42/A

Zeytinburnu/İstanbul

www.oskarasansor.com

© 2016, Oscar Elevator  |  Tüm hakları saklıdır.  | Web Tasarım Netkare Ajans